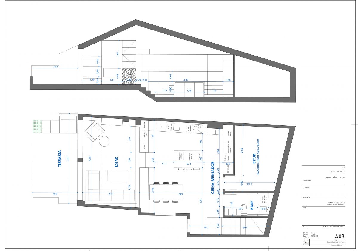
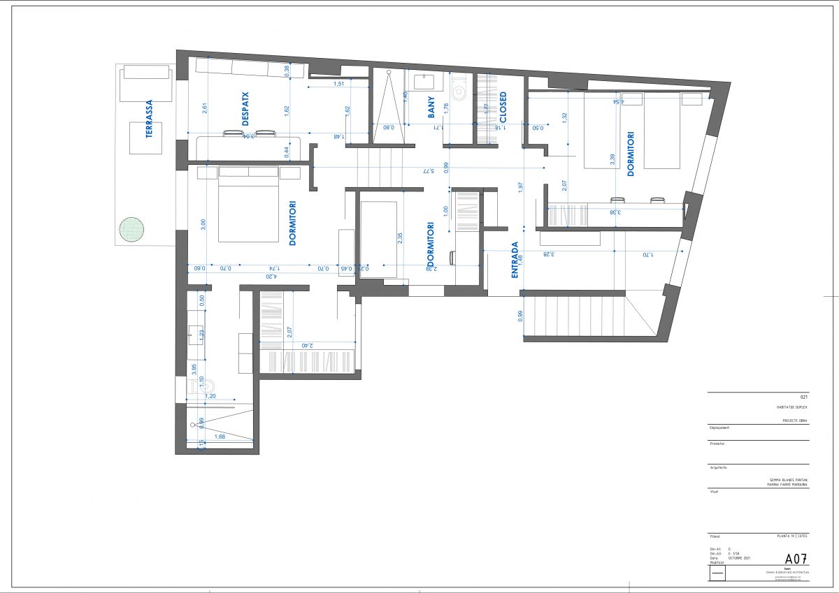
Mostrar tot BLAU house | Sant Pol de Mar reforma interior i harmonització d'un duplex amb vistes entrada i escala planta de dia planta de nit abans